museum of fine arts, houston
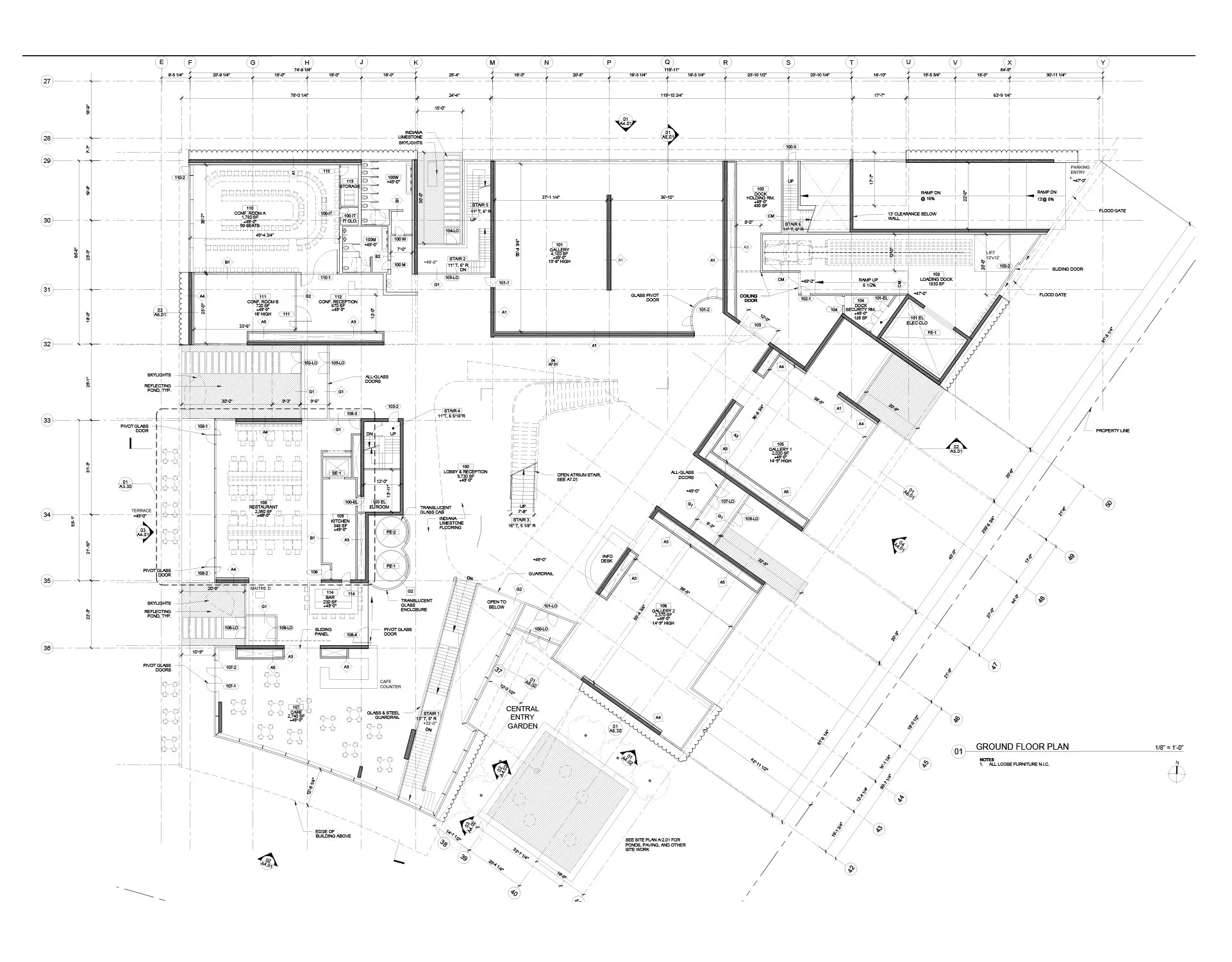
The Museum of Fine Arts Houston project was a two part project being worked on at the Steven Holl Architects' office which encompassed the museum itself, and a ground up rebuild of the adjacent Glaselle School of Art. I worked as part of the Museum team on the Design Development and Construction Documentation phases of the project. I was personally responsible for drawings, renderings, model building, and detail development at all scales.
Photography and drawings courtesy of Steven Holl Architects
MFAH Campus Model
The conceptual driving forces behind this project are porosity, complementary contrast, and an open flow from one gallery to the next. The highlights of the museum building are the layered roofs which open up at slightly different angles allowing diffused light into the top floor galleries, and the glass tube exterior facade which diffuses the light coming into all spaces of the museum.
MFAH - View form ground floor lobby to cafe and garden beyond
MFAH East-West Section
MFAH - Ground floor lobby and grand stair
At SHA design is conducted through a variety of methods and media. We used models, renderings, photography, and drawings in a plethora of combinations to gain insight into what we were creating.
View of MFAH and Glasselle School from hotel across the street
